Vvvf Drive Indoor Outdoor Stainless Steel or Aluminum Moving Walk for High Human Traffic

Customization: Available
After-sales Service: Technical Support
Warranty: 1 Year

Product Description

Basic Product Information
Type
Light
Load Capacity
Customize
Use of Occasions
All
Speed
<1.00m/S
Voltage
380V/220V/Others
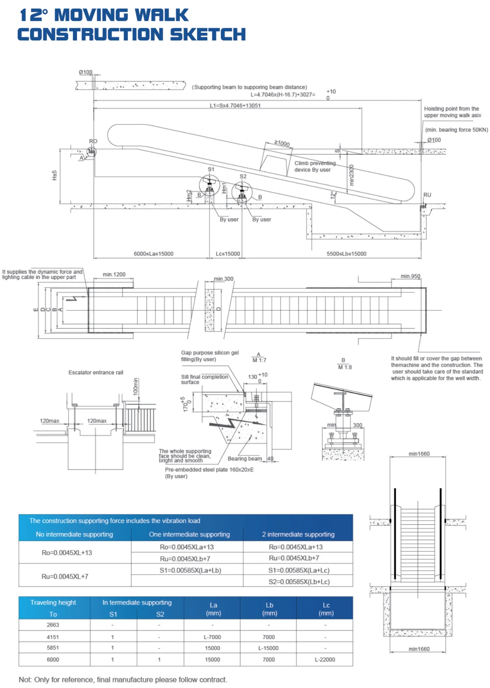
Traveling Height
3000-6000mm
Motor Power
5.5-11
Balustrade Height
900mm, 1000mm (Optional)
ODM/OEM
Yes
HS Code
842810109
Production Capacity
2000sets/Year
Packaging & Delivery
Package Size
160.00cm * 110.00cm * 140.00cm
Package Gross Weight
60.000kg
Product Description

SIX MAJOR COMPONENT 5-YEAR QUALITY ASSURANCE

We provide 5-year quality assurance for the six major Components including tractor, frequency converter, crane, overspeed limit device, safety gear and buffer, far beyond the warranty period in the elevator industry current, thus providing more secure, more reliable, more durable and more stable elevator riding experience for customers.

Overspeed Limit Device

Monitor and control the car speed at anytime, Send signal to safety gear in time.

Safety Gear

In case of overspeed or emergency The car ceases immediately Effectively protect the secure operation of the elevator.

Buffer

Last link of elevator security system, Effective absorption and energy consumption Impact energy of elevator fall.

Main Engine

Permanent magnet synchronous main engine, in strong power. Extraordinary output and energy-saving performance.

Frequency Converter

Use the industry creative 4-quadrant frequency converter, It can effectively reduce the machine room temperature while saving energy.

Crane

The crane needs no position switch and achieve the position control through encoder, High efficiency and low fault rate.

CORE TECHNOLOGY

Integrating with the world leading elevator technology into R&D and manufacturing, we inject flexible and high efficient operation power to elevator, thus enabling it to run in different operation environment and undertaking the heavy task of passenger transport.

Company Profile

Our company is a factory providing intelligent manufacturing, machining, elevator renovation and control integration. Based on the four modules business of elevator renovation, elevator control, teaching and testing equipment, established in the comprehensive advantages in the field of whole life cycle and whole process solution in the field of intelligent (elevator) manufacturing, and has become the leader in the area of intelligent manufacturer.

Frequently Asked Questions
How to place an order?
Inquiry - quotation - confirm-send PI - make the payment - arrange the products-delivery - receive the products.
How to make the payment?
Our company can accept T/T and western union, you can choose the payment method that suits you.
When do you ship after payment?
Most of our goods are in stock and can be shipped within 3 days after payment. For customized goods or large quantities, we will inform you of the production time in advance.
What are the shipping methods?
For light weight and small volume goods, we use DHL, FEDEX, UPS, or TNT. For bulky and heavy goods, we ship by sea or air.
Do the products have a warranty?
Our company provides high-quality products, and all products come with a one-year warranty as standard, with major components covered up to five years.
Can you provide OEM/ODM services?
Yes, we provide full OEM and ODM services to meet specific project requirements and custom specifications.

Related Products