1 / 5
Large Space Stainless Steel of Hospital Elevator
The inner wall of the lift car adopts the stainless steel overlapping uprights and the stainless steel skirting lines, which can be perfectly combined with the high-quality panel materials, thus further highlighting the stable and generous atmosphere.
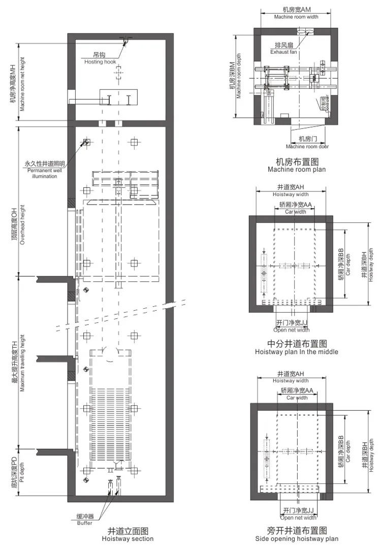
Machine roomless hospital elevator parameter table


| Load (kg) | Speed (m/s) | Size of entrance (mm) | Size of car (mm) | Size of hoistway (mm) | Overhead (mm) | Pit depth (mm) | Max Travel (m) |
|---|---|---|---|---|---|---|---|
| 1600 | 1.0 | center opening 1100*2100 | 1400*2400*2250 | 2400*2800 | 4100/4300 | 1500 | 30/50 |
| 1.6 | 4250/4400 | 1600 | 30/60 | ||||
| 1.75 | 4300/4400 | 1650 | 30/75 |









A professional manufacturer specializing in designing and producing Opto-Electro-Mechanical products. We have extensive experience in exporting all kinds of elevator parts and complete elevators to 80 countries all over the world.