1 / 5


The hospital bed elevator is designed not only for transporting passengers but also to meet strict medical environment requirements. It accurately controls running speeds to ensure a smooth and comfortable experience for patients. Focusing on humanized design, the car structure is fully optimized to create a quiet, elegant, and clean space that harmonizes with the hospital environment, aiding in patient recovery and confidence.



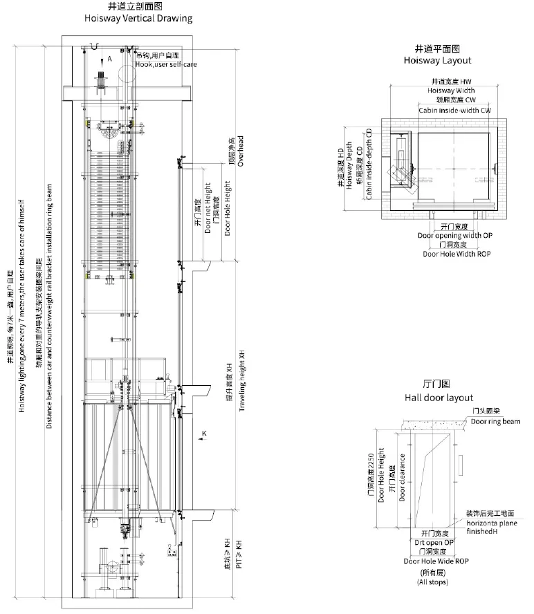
| Load Capacity (kg) | Speed (m/s) | CW*CD*CH (mm) | OP*OPH (mm) | HW*HD (mm) | OH (mm) | PH (mm) |
|---|---|---|---|---|---|---|
| 1600 | 1.0 | 1400*2400*2300 | 1100*2100 | 2550*2900 | 4500 | 1500 |
| 1.5-1.75 | 4700 | 1600 | ||||
| 2.0 | 4900 | 1800 | ||||
| 2.5 | 5100 | 2000 | ||||
| 1800 | 1.0 | 1600*2400*2300 | 1200*2100 | 2750*2900 | 4500 | 1500 |
| 1.5 | 4700 | 1600 | ||||
| 1.75 | 4750 | 1600 | ||||
| 2.0 | 4900 | 1800 |


