Shopping Mall Auto Indoor/Outdoor Moving Sidewalk Walk with High Quality

Customization: Available
After-sales Service: with
Warranty: 6 Months

Product Description

Basic Information
Model NO.
Escalator
Type
Heavy
Load Capacity
4500 Persons/H
Use Occasions
Public Traffic
Speed
0.5M/S
Slope Angle
12°
Width of Stair
800mm
Cascade Level
Two
Driving Type
Screw Type Elevator
Railing Form
EX-P
Step Road Line
Spiral
Motor Power
8kw
Travel Height
1601-2663mm
Exit Width
1400mm
Origin
China
Capacity
500 Set/Year
Product Description
Shopping Mall Auto Indoor/Outdoor Moving Sidewalk Walk with High Quality

Moving walk elevates the shopping to a newly concise and comfortable realm. It not only satisfies the conveying problem of large passenger flow, but also meets the requirements of long-distance walk, carrying luggage cart, baby's cart, shopping cart, the vehicle for the handicapped etc. It is very convenient for people's outing and shopping.
As easy as in smooth ground, the everlasting popular design & quality
It merges with modern flavor design and style
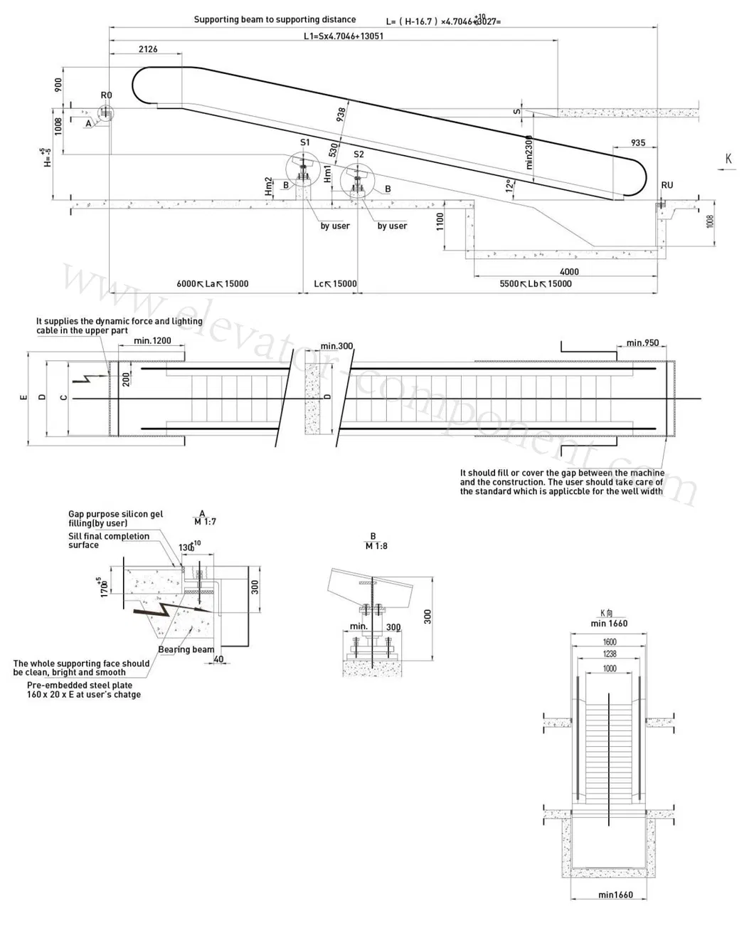
12° Moving Walk Construction Parameter
Moving Walk Construction Diagram
The construction supporting force includes the vibration load
No intermediate support One intermediate supporting Two intermediate supporting
Ro=0.0045XL+13 Ro=0.0045XLa+13 Ro=0.0045XLa+13
Ru=0.0045XL+7 Ru=0.0045XLb+7 Ru=0.0045XLb+7
Height From To S1 S2 La(mm) Lb(mm) Lc(mm) Support Height
1601 2663 - - - - - Hm1 0.2126xLb-1051
2664 4151 1 - L-7000 7000 - Hm1 0.2126xLb-1051
4152 5851 1 - 15000 L-15000 - Hm2 0.2126x(Lb+Lc)-1066
Key Features
  • Safe and Reliable Safety is put in the first place, ensuring each passenger's safe delivery to their destination with high-standard security systems.
  • Space Configurability Innovative machine room layout improves space availability and efficiency, saving valuable building area.
  • Energy Saving & Eco-Friendly Adopts gearless permanent magnet synchronous machines to reduce energy consumption and protect the environment.
  • High Performance Equipped with a stable control system and intelligent dispatching to provide the best solution for passenger flow.
  • Free Custom-Made Flexible options for customized appearance to match the architectural style of your building.
Moving Sidewalk Quality
Factory Overview
Delivery & Packaging
Professional Manufacturing
Manufacturing Expertise
With over 30 years of professional experience, we specialize in designing and producing Opto-Electro-Mechanical products. We have extensive experience exporting all kinds of elevators and elevator parts to 80 countries worldwide, ensuring global standards and high reliability.
Frequently Asked Questions
Q1: What is the maximum passenger capacity of this moving walk? A: This heavy-type moving sidewalk has a load capacity of approximately 4500 persons per hour.
Q2: Can this moving walk be installed outdoors? A: Yes, it is designed for both indoor and outdoor public traffic occasions, such as shopping malls and transport hubs.
Q3: What is the standard slope angle for this model? A: The standard slope angle for this specific model is 12 degrees.
Q4: Is it compatible with shopping carts and luggage? A: Absolutely. It is specifically designed to accommodate shopping carts, luggage carts, baby strollers, and wheelchairs safely.
Q5: How does the system save energy? A: It utilizes a gearless permanent magnet synchronous motor which significantly reduces energy consumption compared to traditional systems.
Q6: What are the available widths for the stairs? A: The standard stair width is 800mm, providing ample space for passengers and carts.

Related Products