1 / 5
Factory Price Shopping Mall Indoor Escalators
Our escalators provide trustworthy green channels for modern infrastructure. Widely applicable for shopping centers, supermarkets, subways, and airports, they add a smooth flow and bright aesthetic to any construction.
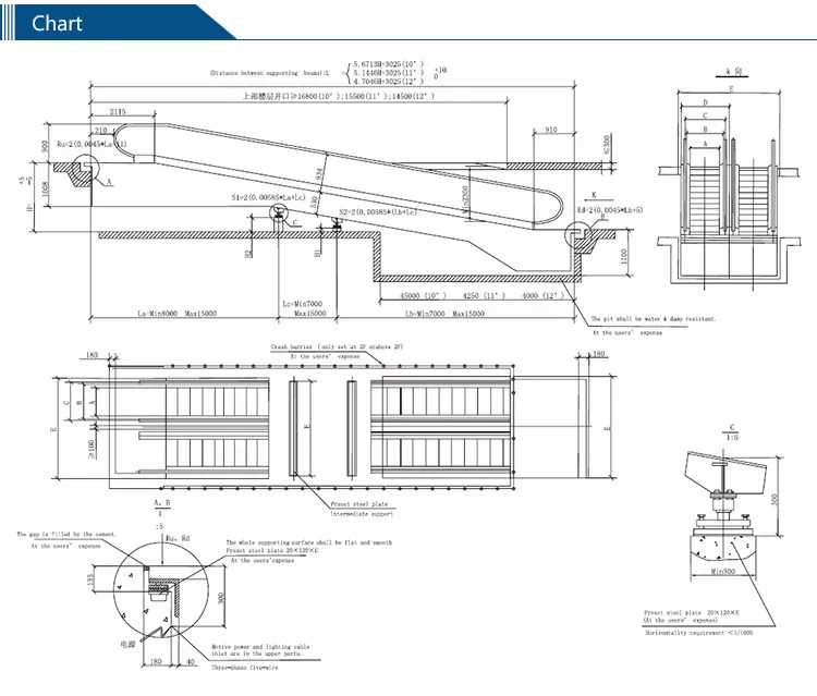
| Type | Step Wide (A) | Outside Cladding (B) | Opening Width (C) | Handrail Spacer (D) | Opening Width (E) | Opening Width (F) |
|---|---|---|---|---|---|---|
| 600 | 600 | 1200 | 1260 | 838 | 1838 | 1260 |
| 800 | 800 | 1400 | 1460 | 1038 | 2038 | 1460 |
| 1000 | 1000 | 1600 | 1660 | 1238 | 2238 | 1660 |


Standard Configuration:
Optional Configuration:


