Commerical Type for Hospital Passenger Elevator for Residence, School, Hotel, House

Customization: Available
Warranty: 18mouths
Type: Hospital Elevator

Product Description

Basic Info.
Model NO.
Hospital Elevator
Speed
0.5m/S-1.0m/S
Capacity
<500kg
Persons
11 - 19
Driving Type
AC Elevator
Control Mode
Group Control
Elevator Door
Center Opening Door
Door Knife
Single
Buffer Device
Energy Consumption
Deceleration
With Deceleration Device
Cop & Lop
Stainless Steel, Glass
Indicator
DOT Matrix Display, LCD
Door Panel
Painted, Stainless Steel
Origin
China
Capacity
3000 units/Year
Product Description
Hospital Passenger Elevator
Model Patient Bed Elevator Lift
Application Residential, Hotel, Office
Loading (Kg) 630 800 1000 1350 1600
Speed (m/s) 1.0/1.75 1.0/1.75/2.0 1.0/1.75/2.0 1.0/1.75/2.0/2.5 1.0/1.75/2.0/2.5
Motor Gearless Motor
Door Control VVVF
Pit Depth (m) 1.5 1.5-1.7 1.5-1.8 1.8-2.0 1.8-2.0
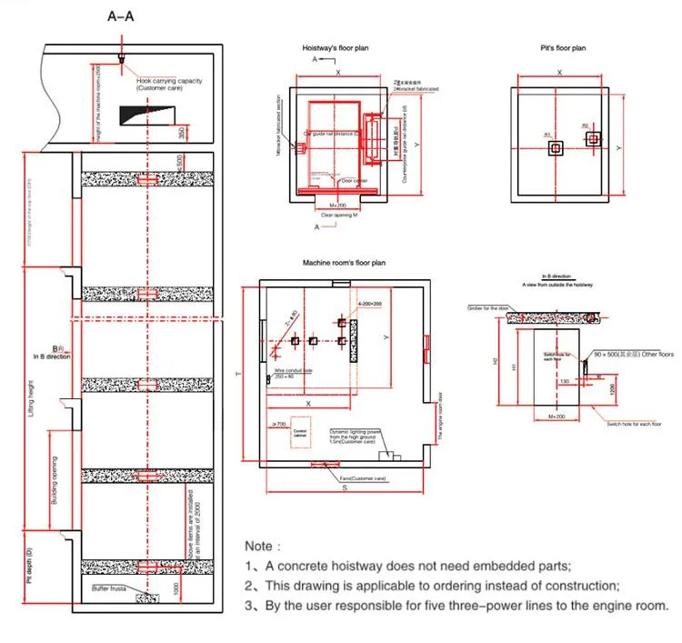
Elevator Design 1 Elevator Design 2
Profile Overview
Factory Overview

The facility covers an area of more than 50 mu, with a factory area exceeding 15,000 square meters, including a dedicated elevator test tower. Equipped with first-class sheet metal production lines and control cabinet assembly systems, the annual production capacity reaches more than 3,000 sets. A "customer-oriented" philosophy drives the research, design, manufacturing, and maintenance processes.

Technology and Production

Comprehensive introduction of advanced technology and manufacturing processes has allowed for a product structure that meets diversified needs. Products include passenger elevators, cargo elevators, residential elevators, sightseeing elevators, and specialized hospital bed elevators. Strategic partnerships are valued to ensure every project meets international standards of safety and efficiency.

Product Showcase
Project Case 1 Project Case 2 Project Case 3
In recent years, the team has undertaken a number of national key new product projects and many provincial major R & D projects.
Packing & Shipping
Packaging Detail

Solid wooden box in container for long distance sea transportation.

Frequently Asked Questions
FAQ Image
How long can I get the feedbacks after we sent the inquiry?
We will reply you within 6 hours on working days.
Are you a direct manufacturer or trading company?
We have three own manufacturing workshops and our own international sales department. We produce and sell all products directly.
What products can you offer?
Our products cover passenger elevators, freight elevators, and escalators/moving walks.
What is the annual capacity of your company?
The facility has an annual production capacity of 6,000 vertical elevators.
What is the typical payment term?
For mass production, a 30% deposit is required before production and the 70% balance must be paid before delivery, usually via T/T or L/C.
How do you deliver the goods?
Usually, we ship by sea as we are located close to major shipping ports, ensuring efficient transport to international markets.

Related Products