Ce Airport Safety VVVF Moving Walk elevates shopping and transit to a newly concise and comfortable realm. It efficiently handles large passenger flows and meets the requirements for long-distance walking, carrying luggage carts, baby strollers, shopping carts, and vehicles for the handicapped.
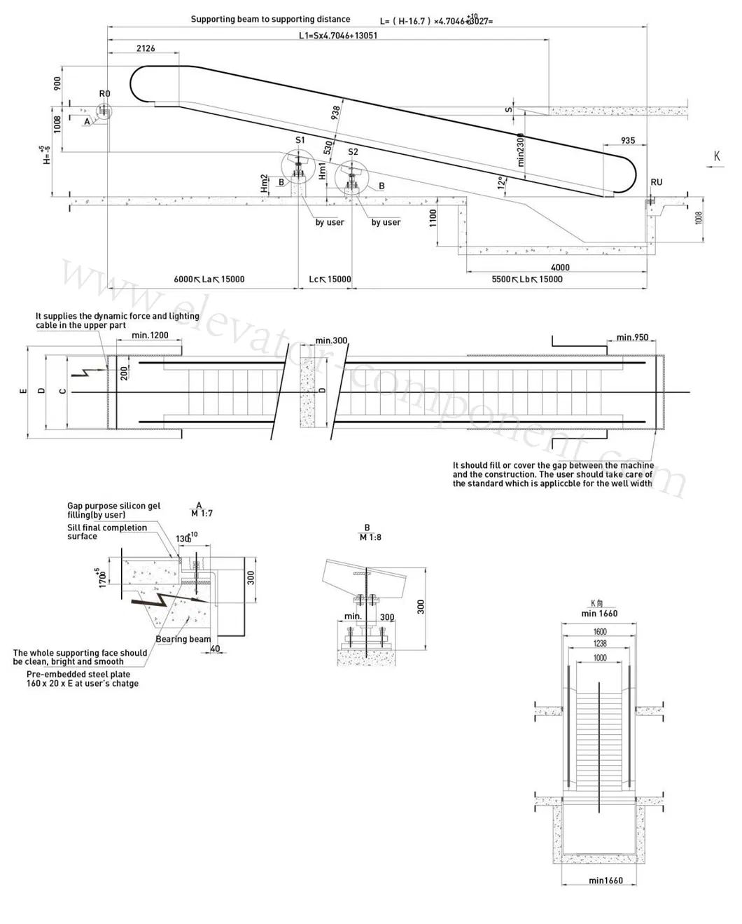
| 12° Moving Walk Construction Parameters (Including Vibration Load) | ||||||||
|---|---|---|---|---|---|---|---|---|
| No intermediate support | One intermediate supporting | Two intermediate supporting | ||||||
| Ro=0.0045XL+13 | Ro=0.0045XLa+13 | Ro=0.0045XLa+13 | ||||||
| Height From | To | S1 | S2 | La(mm) | Lb(mm) | Lc(mm) | Support Height | |
| 1601 | 2663 | - | - | - | - | - | Hm1 | 0.2126xLb-1051 |
Safety is the priority, ensuring each passenger's safe delivery to their destination.
Improved layout of the machine room to maximize space availability.
Adopts gearless permanent magnet synchronous machines for environment protection.
Equipped with a stable control system and intelligent lift dispatching.
Favorite and customized appearances available for specific requirements.






Founded in 1992, we are a 30-year professional manufacturer specializing in designing and producing Opto-Electro-Mechanical products. With extensive experience since 2012, we export all kinds of elevators and elevator parts to 80 countries worldwide.