Fujivista Domestic Lifts Mrl Home Elevator Small Glass Villa Lift with Panoramic Observation Design and LED Lighting

Customization: Available
Driving Type: AC Elevator
Capacity: 500-1000kg

Product Description

Basic Specifications

Model NO.JH-RS1
Capacity6 - 10 Persons
Rated Speed1.00 - 2.00m/s
Control ModeCollective Selective Control
Computer RoomPositioned Up
Elevator DoorCenter Opening Door
Deceleration DeviceWith Deceleration Device
Buffer TypeHydraulic Buffer
ApplicationHotel, Apartment, Office Building
Traction MachineGearless Traction Machine
MaterialMirror Etching Panel
Control SystemMonarch Vvvf Controller
Optional FunctionsARD, IC Card, Remote Monitor

Packaging & Delivery

Package Size589.00cm * 233.00cm * 231.00cm
Package Gross Weight1560.000kg
Transport PackageWooden Case, Pallet, PE-Film

Product Description

Passenger Elevator Solutions

Our Passenger Elevators are built for high-rise residential, commercial, and office buildings, offering quiet, smooth rides, energy efficiency, and customizable elegant cabins.

Observation home elevator design 1
Observation home elevator design 2
Observation home elevator design 3

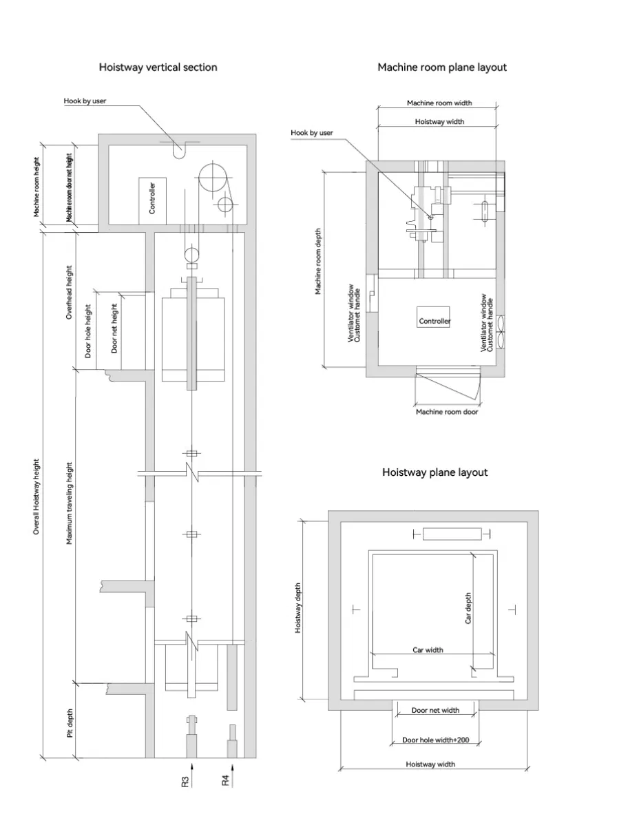
Construction & Technical Sketch

  • Drawings meet global elevator standards for precise installation.
  • Holes from machine room to well feature mandatory safety steps (>50mm).
  • Waterproof door sill design to protect equipment post-installation.
  • Guided buffer base creation for maximum safety.
Small machine room passenger elevator construction sketch
Load (kg) Speed (m/s) Hoistway Size (mm) Car Dimension (mm) Overhead (mm) Pit Depth (mm)
630 1.0 - 2.0 2000 × 1800 1400 × 1100 4500 - 4900 1500 - 2000

* Note: Dimensions are for reference; final manufacture follows the contract specifications.

After Sales Service

  • Standard Warranty: 12 months post-assembly.
  • Global Support: 24/7 technical assistance and spare parts availability.
  • Training: Comprehensive on-site or remote operation and maintenance training.

Company Profile

Manufacturing Facility

As a leading elevator manufacturer with 30 years of expertise, we are ISO 9001 and CE certified. We export to over 10 countries, offering reliable products backed by rigorous R&D and quality control.

Production Excellence

Why Choose Us?

OEM/ODM capabilities, competitive pricing, and turnkey project solutions.

Other Elevator Models

Other Products

Home elevators, freight elevators, and sightseeing panoramic lifts.

Frequently Asked Questions

Q1: How to handle installation after purchase? A: We provide comprehensive manuals and technical drawings. You can hire local teams, and our engineers offer remote guidance for a seamless installation process.
Q2: How is the risk of damage managed during sea freight? A: We use reinforced crates and anti-rust packaging. Under CIF terms, full insurance covers the goods from port to port to protect your investment.
Q3: What is the timeline for a customized elevator? A: Design proposals are ready in 3 days after receiving hoist-way details. Production begins post-deposit, and shipping typically occurs 15 days after the final balance.
Q4: What are the standard payment terms? A: We typically require a 30% deposit to start production, with the 70% balance due prior to shipment. We mainly accept T/T (Telegraphic Transfer).
Q5: What additional costs should be considered beyond the quote? A: Our quotes cover the product, export packaging, and freight/insurance (under CIF). Buyers should consider local import duties, customs fees, and local inland transport.
Q6: Are the elevators energy efficient? A: Yes, our elevators use Gearless Traction Machines and VVVF control systems, which significantly reduce energy consumption compared to traditional systems.

Related Products