Fujivista Domestic Lifts Mrl Home Elevator Small Glass Villa Lift with Smart Gearless Traction System, 3-5 Persons Residential Panoramic Elevator, Elevador Resi

Customization: Available
Driving Type: AC Elevator
Capacity: 500-1000kg

Product Description

Basic Specifications
Model NO.
JH-RS100
Persons
6 - 10
Speed
1.00 - 2.00m/s
Control Mode
Collective Selective Control
Computer Room
Position Up
Elevator Door
Center Opening Door
Deceleration
With Deceleration Device
Buffer
Hydraulic Buffer
Application
Hotel, Apartment, Office Building
Traction Machine
Gearless Traction Machine
Material
Mirror Etching Panel
Control System
Monarch Vvvf Controller
Packaging & Delivery
Package Size
589.00cm * 233.00cm * 231.00cm
Gross Weight
1560.000kg
Transport Package
Wooden Case, Pallet, PE-Film
Product Description

Passenger Elevators: Designed for high-rise buildings, offering smooth, quiet rides, exceptional energy efficiency, and fully customizable cabins to match your architectural vision.

Observation Home Elevator
Observation home elevator - View 1
Observation Home Elevator
Observation home elevator - View 2
Observation Home Elevator
Observation home elevator - View 3
Installation Guidelines
  • Approved drawings guide installation, meeting strict elevator standards.
  • Ensure >50mm step and proper width for machine room to well holes.
  • Step between decor and door sill to prevent water entry post-installation.
  • Watering objects must meet graphic standards during installation.
  • Create buffer base under professional installer guidance.
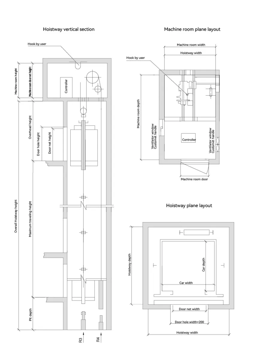
Technical Sketch
Small machine room passenger elevator sketch
Technical Parameters
Load (kg) Speed (m/s) Hoistway Size (XxY mm) Machine Room Size (mm) Car Dimension (AxB mm) Door Opening Size (mm) Overhead Height (OH) Pit Depth (PP)
630 1.0 2000×1800 2000x3500 1400×1100 800 4500 1500
1.5 4600 1600
1.75 4700 1700
2.0 4900 2000

Note: Only for reference, final manufacture please follow contract.

After Sales Service

Standard Warranty: 12 months post-assembly (excludes transportation fees).

Global Support: 24/7 technical help and high-priority spare parts availability.

Training: Comprehensive on-site or remote operation and maintenance training programs.

Company Overview
Factory Overview

A leading elevator manufacturer, ISO 9001 and CE certified. Exporting to 10+ countries with strong R&D capabilities and quality-backed products.

Production Line
Quality Control
Why Choose Us?
  • OEM/ODM capabilities
  • Competitive pricing & bulk discounts
  • Fast shipping & customs clearance
  • Turnkey project solutions
Other Products
  • Home elevator
  • Freight elevator
  • Sightseeing elevator
  • Panoramic elevators
Frequently Asked Questions
How to handle installation post-purchase?
Detailed manuals and technical drawings are provided. You can hire local teams, and our engineers offer comprehensive remote guidance throughout the process.
How is damage risk during sea freight managed?
We use reinforced wooden crates and professional anti-rust packaging. Additionally, full insurance is provided under CIF terms to protect your investment.
What is the timeline for a customized elevator?
1. Design: Submit hoist-way details for a proposal in 3 days. 2. Production: Commences post-deposit. 3. Delivery: Typically ships within 15 days after the balance payment.
What are the accepted payment terms?
We offer flexible and secure options: 30% deposit to start production and 70% balance due post-production and pre-shipment via T/T (Telegraphic Transfer).
What additional costs should be considered besides the quote?
Depending on Incoterms (FOB/CIF), the quote includes the product, export packaging, and freight/insurance. Customers should consider local import duties, customs fees, and installation labor.
What kind of technical support is available?
We provide global 24/7 technical help, spare parts availability, and both on-site or remote training for operation and maintenance.

Related Products