1 / 5
Dumbwaiter Features: Small space required. No excessive sturdy civil work is required. Perfect and economical designs can be provided not only for new constructions but also for existing buildings.
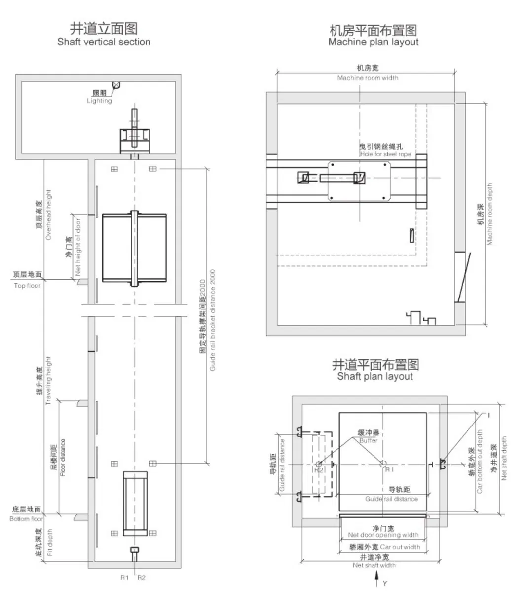
| Load (kg) | Speed (m/s) | Car Size (mm) | Door Opening (mm) | Shaft Size (mm) | Overhead | |||
|---|---|---|---|---|---|---|---|---|
| W | D | W | H | W | D | |||
| 100 | 0.4 | 750 | 750 | 700 | 1000 | 1300 | 900 | 3000 |
| 200 | 0.4 | 900 | 900 | 850 | 1200 | 1450 | 1050 | 3000 |
| 250 | 0.4 | 1000 | 1000 | 950 | 1200 | 1550 | 1150 | 3000 |








